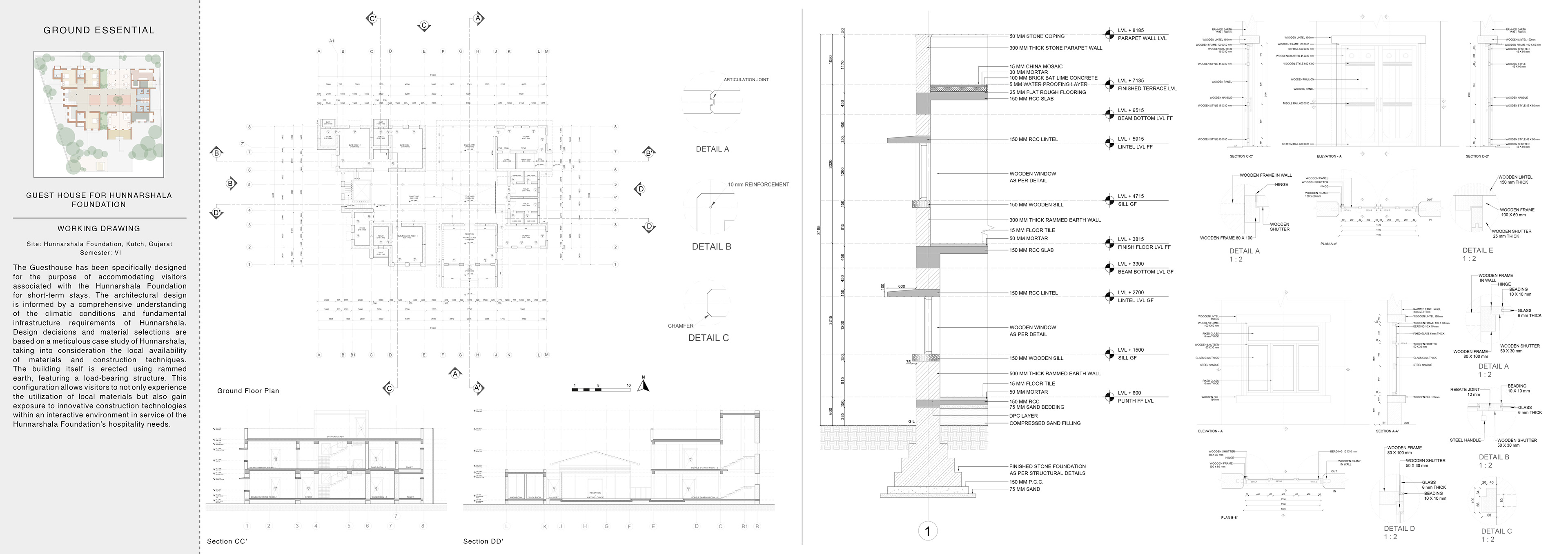
We use cookies to ensure the best experience on our site. By continuing, you accept our cookie policy. Accept Decline